Cart
0
Home
Services
Gallery
Request A free quote
OVERVIEW OF THE PROCESS
Contact us
Back
Finished Homes
3D Impressions
Cart
0
Home
Services
Gallery
Finished Homes
3D Impressions
Request A free quote
OVERVIEW OF THE PROCESS
Contact us
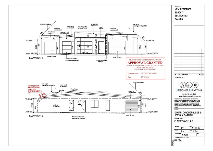
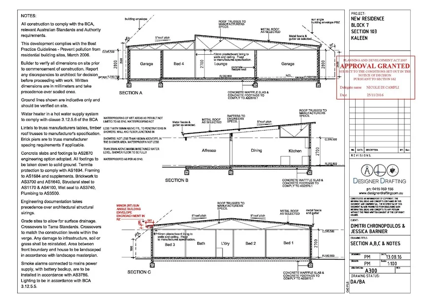
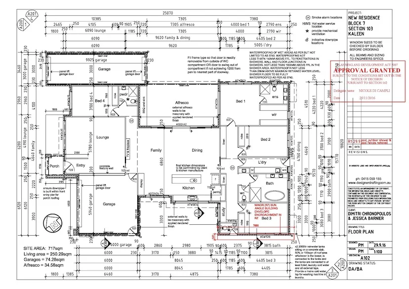
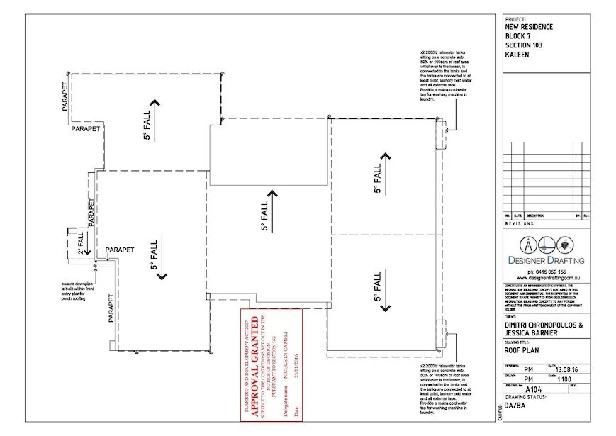
Kaleen Project